- Woonoppervlakte
- Circa 81 m²
- Inhoud
- Circa 246 m³
- Bouwjaar
- Gebouwd in 1992
- Aantal kamers
- 3 kamers (2 slaapkamers)
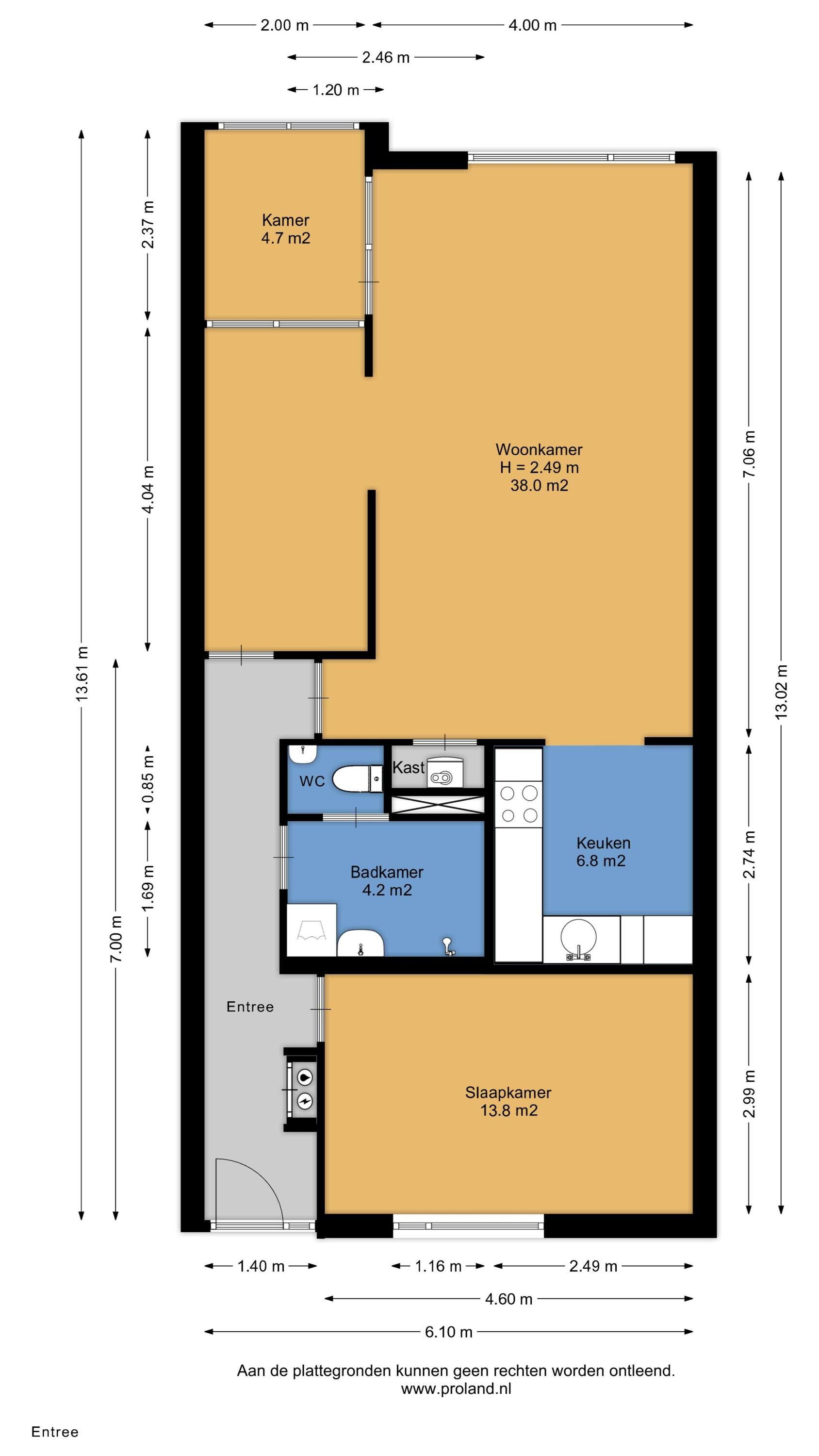
Welkom bij de Evenaar 99 in Alphen aan den Rijn! Dit moderne en lichte 3-kamer appartement (81 m²) is gelegen op de tweede verdieping van een verzorgd complex in de populaire wijk Kerk & Zanen. Een plek waar rust, comfort en een centrale ligging samenkomen – ideaal voor jong én oud die op zoek zijn naar een fijne woonomgeving.
Vanuit de woonkamer en loggia geniet u dagelijks van een prachtig vrij uitzicht over het Europapark. Hier ervaart u de ruimte en het groen van de omgeving, terwijl alle voorzieningen letterlijk om de hoek liggen: winkelcentrum De Atlas, basisscholen, sportfaciliteiten en openbaar vervoer. Binnen vijf minuten fietsen bereikt u het NS-station of het bruisende stadscentrum met winkels, horeca en gezellige terrassen. Dankzij de gunstige ligging bij de N11 en N207 bent u bovendien binnen een half uur in steden als Leiden, Den Haag of Utrecht – én op Schiphol.
Indeling:
Via de hal met toilet, garderobe en meterkast kom je in de royale en lichte woonkamer. Hier geniet je van een fijne doorzonruimte met vrij uitzicht. De open keuken is van alle gemakken voorzien, inclusief een gasfornuis, afzuigkap, koel-vriescombinatie en vaatwasser. De leefruimte staat in verbinding met de loggia, waar u heerlijk kunt genieten van een kopje koffie in de ochtend of gezellig een drankje kunt drinken met vrienden in de middag- of avondzon.
Het appartement beschikt over twee comfortabele slaapkamers, ideaal voor een goede nachtrust en uiteraard ook voor andere doeleinden geschikt.
De badkamer is ruim en functioneel ingericht met een ruime douche, wastafel en een wasmachine-aansluiting, wat het dagelijks leven een stuk gemakkelijker maakt.
Eigen berging op de begane grond en parkeerplaats op eigen terrein
Bijzonderheden
- Woonoppervlakte ca. 81 m²
- 2 slaapkamers
- Vrij uitzicht over het Europapark
- Loggia op het westen
- Volledig voorzien van laminaat
- Servicekosten: € 225,- p/m
- Nabij winkels, scholen, NS-station en het centrum
Kortom: een instapklaar appartement met een combinatie van comfort, licht en een toplocatie. Laat deze kans niet aan u voorbijgaan en plan vandaag nog een bezichtiging. Wie weet wordt dit binnenkort uw nieuwe thuis!
Overdracht
- Koopsom
- € 325.000 k.k.
- Status
- Verkocht
- Aanvaarding
- In overleg
- Bijdrage VvE
- € 225 p/m
Bouw
- Object type
- Galerijflat, appartement
- Soort bouw
- Bestaande bouw
- Bouwjaar
- 1992
- Soort dak
- Plat dak bedekt met bitumineuze dakbedekking
Oppervlakte en inhoud
- Woonoppervlakte
- 81 m²
- Inhoud
- 246 m³
- Externe bergruimte
- 4 m²
Indeling
- Aantal kamers
- 3 kamers (2 slaapkamers)
- Aantal badkamers
- 1 badkamer
- Badkamervoorzieningen
- Douche, wastafel, wasmachineaansluiting
- Aantal woonlagen
- 1 woonlaag
- Voorzieningen
- Lift, natuurlijke ventilatie
Energie
- Energielabel
- B
- Energielabel registratie
- 06-04-2018
- Isolatie
- Dubbel glas
- Verwarming
- Cv-ketel
- Warm water
- Cv-ketel
- Cv ketel
- Nefit combiketel gas gestookt uit 2022 (eigendom)
Buitenruimte
- Ligging
- In woonwijk, vrij uitzicht
- Tuin
- Geen tuin
Bergruimte
- Schuur / berging
- Inpandig
Garage
- Soort garage
- Geen garage
Parkeergelegenheid
- Soort parkeergelegenheid
- Op eigen terrein
VvE checklist
- Inschrijving KvK
- Ja
- Jaarlijkse vergadering
- Ja
- Periodieke bijdrage
- Ja, € 225 p/m
- Reservefonds aanwezig
- Ja
- Onderhoudsplan
- Ja
- Opstalverzekering
- Ja
Energieverbruik in Alphen aan den Rijn
Energielabel deze woning
Energielabel B
Publicatie energielabel: 06-04-2018
Stroomverbruik per jaar
(Gemiddelde appartement in Alphen aan den Rijn)
Gasverbruik per jaar
(Gemiddelde appartement in Alphen aan den Rijn)
* Cijfers zijn afkomstig van het CBS en bedoeld als indicatie en kunnen verschillen voor deze woning
Indicatie hypotheeklasten
Eigen inleg:
Spaargeld / overwaarde
Rente:
Laagste 10-jaars rente
Laagste 10-jaars rente
2,73% - Centraal Beheer Groen... - NHG
3% - Centraal Beheer Groen Lee... - 80%
Laagste 20-jaars rente
3,18% - Argenta Groen Hypothee... - NHG
3,39% - Argenta Groen Hypothee... - 80%
Laagste 30-jaars rente
3,35% - Argenta Groen Hypothee... - NHG
3,56% - Argenta Groen Hypothee... - 80%
Hypotheek:
Bruto maandlasten: € 0 p/m
Netto maandlasten: € 0 p/m
Hoe berekenen we dit?
Het rentepercentage is gebaseerd op de laagste 10 jaars vaste rente voor één hypotheekdeel. De vermelde rente (2.73% met NHG) is gecontroleerd op 18-11-2025. Deze berekening is gebaseerd op een annuïteitenhypotheek die volledig wordt afgelost, waarbij de maandlasten gedurende de gehele looptijd gelijk blijven. De werkelijke rente en netto maandlasten kunnen variëren, afhankelijk van uw persoonlijke situatie en de hypotheekverstrekker. Raadpleeg een financieel adviseur voor een nauwkeurige berekening en advies. Aan deze berekening kunnen geen rechten worden ontleend; het dient enkel als indicatie.
Documentatie
Kadastrale kaart
Leefomgeving
Brochure
Plattegronden PDF
BAG uittreksel
Akte-van-levering
Akte-van-splitsing
Concept-begroting-2026
Huishoudelijk-reglement
Investeringsraming-groot-onderhoud
Jaarverslag-2024
Lijst-van-zaken
Mjop
Vragenlijst
Vve-notulen
Energielabel
Bekijk onze website
Bezichtiging
Bod uitbrengen
Waardebepaling
Zoekopdracht
Alles downloaden
Zonnegrenzen bekijken
Op de kaart
Inwoners in Alphen aan den Rijn
Cijfers voor postcodegebied 2408
- Totaal aantal inwoners
- 114182 inwoners
- Mannen
- 49%
- Vrouwen
- 51%
Inwoners in Alphen aan den Rijn
Cijfers voor postcodegebied 2408
- tot 15 jaar
- 17%
- 15 tot 25 jaar
- 11%
- 25 tot 35 jaar
- 25%
- 45 tot 65 jaar
- 29%
- 65 en ouder
- 18%
Huishoudens in Alphen aan den Rijn
Cijfers voor postcodegebied 2408
- Eenpersoons zonder kinderen
- 25%
- Meerpersoons zonder kinderen
- 28%
- Huishoudens zonder kinderen
- 53%
Huishoudens in Alphen aan den Rijn
Cijfers voor postcodegebied 2408
- Huishoudens met één kind
- 6%
- Huishoudens met meerdere kinderen
- 40%
- Huishoudens met kinderen
- 46%
Woningen in Alphen aan den Rijn
Cijfers voor postcodegebied 2408
- Woningen voor 1945
- 1%
- Woningen tussen 1945 en 1965
- 1%
- Woningen tussen 1965 en 1975
- 1%
- Woningen tussen 1975 en 1985
- 1%
- Woningen tussen 1985 en 1995
- 34%
Woningen in Alphen aan den Rijn
Cijfers voor postcodegebied 2408
- Woningen tussen 1995 en 2005
- 33%
- Woningen tussen 2005 en 2015
- 25%
- Woningen na 2015
- 8%
- Huurwoningen
- 30%
- Koopwoningen
- 70%
Overige in Alphen aan den Rijn
Cijfers voor postcodegebied 2408
- Gemiddelde WOZ waarde
- € 319.000,-
- Personen onder de 65 met uitkering
- 4%
Overige in Alphen aan den Rijn
Cijfers voor postcodegebied 2408
- Adressen per km²
- 2009
- Stedelijkheid (schaal 1 op 5)
- 80%
Korte feiten over Alphen aan den Rijn
Alphen aan den Rijn is de hoofdplaats van de gelijknamige gemeente Alphen aan den Rijn. De plaats is gelegen in de Nederlandse provincie Zuid-Holland, aan de rivieren Oude Rijn en Gouwe in het veenweidegebied Groene Hart tussen de grote steden Amsterdam, Utrecht, Rotterdam, Den Haag en Leiden. Een inwoner van Alphen aan den Rijn wordt Alphenaar genoemd.
Indien u vragen heeft of u wilt een bezichtiging inplannen, dan kunt u gebruik maken van het formulier hiernaast. Er zal daarna op korte termijn contact met u worden opgenomen.
Euromarkt 3
2408 BA, Alphen aan den Rijn
0172 - 234 406 info@houtmandevogel.nl www.houtmandevogel.nlContact opnemen
Over Houtman & de Vogel
Bent u van plan om uw woning te verkopen? Zoek niet verder! Bij Houtman & de Vogel profiteert u van ervaren makelaars met uitgebreide kennis van de lokale woningmarkt. Ons doel is om de best mogelijke verkoopprijs en voorwaarden voor onze klanten te realiseren. Benieuwd hoe we dat doen? Maak een afspraak en ontdek wat wij voor u kunnen betekenen.
Ons kantoor is gevestigd op de Euromarkt 3 in Alphen aan den Rijn. Het heeft een professionele uitstraling en is voorzien van opvallende tv-schermen in de etalage waar uw woning wordt gepresenteerd. U kunt ons eenvoudig bereiken en er is gratis parkeergelegenheid voor de deur!
Houtman & de Vogel staat bekend om zijn actieve en resultaatgerichte aanpak, gekenmerkt door een no-nonsense mentaliteit. Wij zijn 6 dagen per week en 16 uur per dag bereikbaar. U kunt bij ons terecht voor bezichtigingen of een (gratis) waardebepaling, niet alleen tijdens kantooruren, maar ook in de avonduren en op zaterdag.
Nieuwste reviews
-
Rijndijk 27
Super geholpen door Benno, ik beveel van harte aan. Dracula dig en erg prettig geholpen. Van het begin tot het einde
-
Passage 35
Het contact was niet veel moest iedere keer vragen, en nu verder.Wij dachten dat we een VVE hadden maar dat was niet er werd niet op gereage...
-
Passage 35
Het contact was niet veel moest iedere keer vragen, en nu verder.Wij dachten dat we een VVE hadden maar dat was niet er werd niet op gereage...